Ufficio in affitto

Scandiano, via de chirico - Chiozza
€ 1.400 / mese
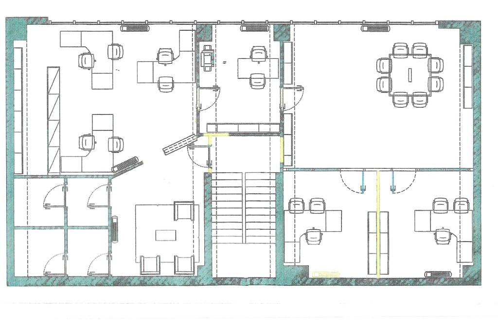
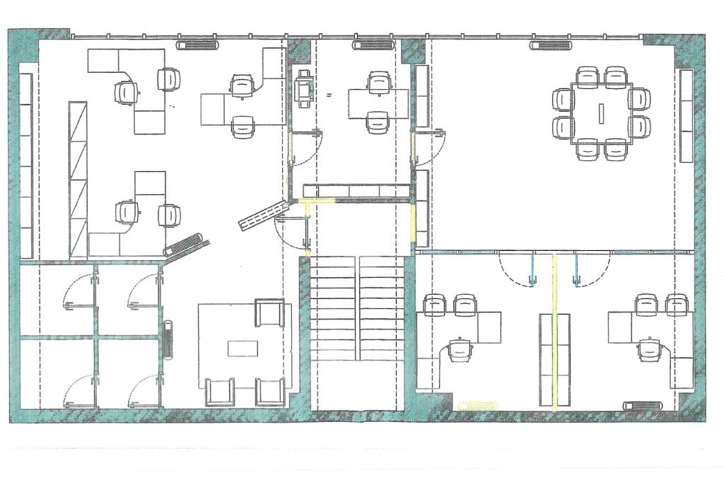
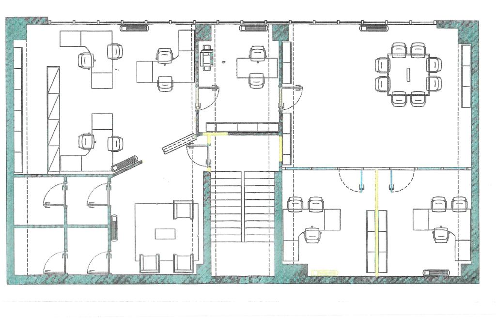
5 locali 5 locali
170 Mq 170 Mq
2 bagni 2 bagni

Ufficio in affitto

Scandiano, via de chirico - Chiozza

Descrizione annuncio

Uffici luminosi con grandi vetrate – Utenze incluse e zero spese condominiali

In posizione strategica e facilmente raggiungibile, proponiamo in affitto uffici al primo piano di un moderno complesso logistico, caratterizzati da grande luminosità grazie alle ampie pareti vetrate e da un’eccellente visibilità. Gli spazi si presentano in ottimo stato manutentivo e rappresentano una soluzione ideale per aziende, studi di progettazione, attività informatiche, studi professionali e consulenziali, ma si presta perfettamente anche ad attività creative o ricreative, che cercano ambienti di lavoro funzionali, curati e immediatamente operativi, con il vantaggio di non avere spese condominiali e con tutti i consumi delle utenze già inclusi nel canone.

Mostra tutto

Nelle vicinanze

Trasporto pubblico Trasporto pubblico
Scandiano
Scandiano
1,0 Km
Trasporto pubblico
1,0 Km
Scandiano - Polo Scolastico
Scandiano - Polo Scolastico
730 m
Scandiano - Stazione
Scandiano - Stazione
1,0 Km
Chiozza
Chiozza
360 m
Ricariche auto elettriche Ricariche auto elettriche
Casalgrande Marx | Emobitaly
2,7 Km
Scuole Scuole
Istituto Superiore Statale Gobetti
690 m
Scuola Media Boiardo - Vallisneri
1,1 Km
Scuola Media Vallisneri
1,1 Km
Scuola Elementare Laura Bassi
1,1 Km
Scuola primaria S. Francesco
1,2 Km
Farmacia Farmacia
Farmacia Comunale Scandiano Ventoso
950 m
Farmacia Fiorentini
1,5 Km
Farmacia Spallanzani
1,6 Km
Farmacia Comunale Ventoso
2,1 Km
Farmacia Arceto
2,5 Km
Ospedali Ospedali
Ospedale Cesare Magati
1,2 Km
Supermercati Supermercati
Cassetta Verde
850 m
Coop Scandiano
920 m
Supermercati
950 m
EuroSpin
960 m
Conad Primavera
1,2 Km
Negozi Negozi
ZR
860 m
Tuttintimo
880 m
AlleGrande
1,1 Km
Bazar Abbigliamento
1,2 Km
Edda
1,3 Km
Bar Bar
Corallo
1,7 Km
Cristofer
2,6 Km
Bar "del Conte"
2,8 Km
Ristoranti Ristoranti
Ristorante Pizzeria Peter Pan
430 m
Gulliver
860 m
Sushiko
880 m
Osteria in Scandiano
1,2 Km
Negresco
1,2 Km
Mostra tutto

Caratteristiche

Rif.:
61190035
Piano:
1 di 2 (Piano basso)
Condizionamento:
Autonomo
Ascensore:
No
Riscaldamento:
Autonomo
Giardino:
Condominiale
Mostra tutto
Prezzo Prezzo
€ 1.400 / mese
Spese annue Spese annue
€ 0

Classe Energetica

E
E
E
E
E
E
E
E
E
EP globale non rinnovabile:
57.50 kW h/m² anno
EP invernale del fabbricato:
EP estiva del fabbricato:
Anno di costruzione:
2007
Riscaldamento:
Autonomo
Tipo impianto:
Ad aria
Tipo alimentazione:
Metano

Ti interessa visionare l'immobile?

Fissa un appuntamento  Fissa un appuntamento

Richiedi informazioni

Clicca su Leggi per aprire l'informativa
* Questi campi sono obbligatori
Affiliato
Agenzia Immobiliare Benvenuta Casa Srl
Via Trento, 1/a 42019 Scandiano (RE)

Il nostro staff


  • Davide Piacenti
    Affiliato

  • Marcello Codeluppi
    Collaboratore

  • Giorgia Annigoni
    Coordinatrice

  • Giovanni Paolucci
    Collaboratore
Via Trento, 1/a 42019 Scandiano (RE)
Zona: Scandiano-Albinea-Canali
Mostra su mappa
Orari: Lunedì - Venerdì: 9:00 - 13:00 / 15:00 - 19:45. Sabato: 9:00 - 13.00. Orari personalizzati: su appuntamento.
Affiliato
Agenzia Immobiliare Benvenuta Casa Srl
Via Trento, 1/a 42019 Scandiano (RE)

2026 Tecnocasa Franchising S.p.A. - P. IVA 08365160152 - Via Monte Bianco 60/A 20089 Rozzano (MI). Ogni agenzia ha un proprio titolare ed è autonoma. Privacy policy | Policy utilizzo | Cookie policy